d
e
n
k
m
a
l
p
f
l
e
g
e
n
e
u
b
a
u
s
t
ä
d
t
e
b
a
u
s
t
ä
d
t
e
b
a
u
l
i
c
h
e
s k
o
n
z
e
p
t
z
u
r p
l
a
t
z
n
e
u
g
e
s
t
a
l
t
u
n
g
d
e
r e
h
e
m. j
o
h
a
n
n
i
s
g
a
s
s
e
d
u
r
c
h w
o
h
n - u. g
e
s
c
h
ä
f
t
s-
k
o
m
p
l
e
x a
r
n
s
t
a
d
t
v
o
r
p
l
a
n
u
n
g z
u
r e
r
r
i
c
h
t
u
n
g
d
e
s a
r
n
s
t
a
d
t c
e
n
t
e
r
s
s
t
ä
d
t
e
b
a
u
s
a
n
i
e
r
u
n
g
u
m
b
a
u
/
s
a
n
i
e
r
u
n
g
e
h
e
m.
w
o
h
n
-
u. g
e
w
e
r
b
e
g
e
b
ä
u
d
e
u
m
b
a
u u. m
o
d
e
r
n
i
s
i
e
r
u
n
g
g
e
w
e
r
b
e
g
e
b
ä
u
d
e i
n m
f
h
s
a
n
i
e
r
u
n
g / m
o
d
e
r
n
i
s
i
e
r
u
n
g
m
e
h
r
f
a
m
i
l
i
e
n
h
a
u
s e
r
f
u
r
t
|
|
|
|
n
e
u
b
a
u e
i
n
e
s w
o
h
n
- u. g
e
s
c
h
ä
f
t
s
h
a
u
s
e
s a
r
n
s
t
a
d
t
b
a
u
h
e
r
r
:
t
h
o
m
a
s
d
.
j
a
h
r
:
1
9
9
9 - 2
0
0
0
o
r
t
:
r
o
s
e
n
s
t
r
. 4
3 i
n a
r
n
s
t
a
d
t
u
m
b
a
u
t
e
r
r
a
u
m
:
2
0
6
5 m
³
e
i
n
h
e
i
t
e
n
:
6 w
o
h
n
e
i
n
h
e
i
t
e
n + 1 g
e
s
c
h
ä
f
t
f
l
ä
c
h
e
:
w
o
h
n
f
l
ä
c
h
e
: 3
6
4 m
², g
e
w
e
r
b
e
f
l
ä
c
h
e
: 7
6 m
²
n
e
u
b
a
u w
o
h
n
- u. g
e
s
c
h
ä
f
t
s
h
a
u
s
m
a
r
l
i
n
s
h
a
u
s
e
n
b
a
u
h
e
r
r
:
c
a
r
s
t
e
n g
.
e
i
n
h
e
i
t
e
n
:
3 w
o
h
n
e
i
n
h
e
i
t
e
n + 1 g
e
s
c
h
ä
f
t
f
l
ä
c
h
e
:
w
o
h
n
f
l
ä
c
h
e
: 2
7
7 m
², g
e
w
e
r
b
e
f
l
ä
c
h
e
: 7
6 m
²
u
m
b
a
u
t
e
r
r
a
u
m
:
1
7
6
5 m
³
j
a
h
r
:
1
9
9
9 - 2
0
0
0
o
r
t
:
a
r
n
s
t
ä
d
t
e
r
s
t
r
a
ß
e 16
a
i
n
m
a
r
l
i
s
h
a
u
s
e
n
n
e
u
b
a
u v
o
n 3 m
e
h
r
f
a
m
i
l
i
e
n
h
ä
u
s
e
r
n
m
i
t t
i
e
f
g
a
r
a
g
e
h
e
s
s
e
n
j
a
h
r
:
2
0
0
0
o
r
t
:
g
a
r
t
e
n
s
t
r
. 1
5
,
1
7 u.
1
9
i
n
a
l
t
e
n
s
t
a
d
t
,
h
e
s
s
e
n
b
a
u
h
e
r
r
:
t
h
o
m
a
s
d
.
e
i
n
h
e
i
t
e
n
:
j
e
h
a
u
s 6
w
e
f
l
ä
c
h
e
:
w
o
h
n
f
l
ä
c
h
e
:
a
) 4
7
5 m
² b
) 4
7
9 m
² c
) 5
5
0 m
²
u
m
b
a
u
t
e
r
r
a
u
m
:
a
) 2
2
9
0 m
³ b
) 2
2
9
0 m
³ c
) 2
6
0
1 m
³
n
e
u
b
a
u e
i
n
e
s s
p
o
r
t
v
e
r
e
i
n
s
g
e
b
ä
u
d
e
s l
e
g
e
f
e
l
d
b
a
u
h
e
r
r
:
s
t
a
d
t
w
e
i
m
a
r
j
a
h
r
:
2
0
0
2 - 2
0
0
5
o
r
t
:
a
u
f
d
e
m
d
ü
r
b
a
c
h
e
i
n
l
e
g
e
f
e
l
d
b
e
i
w
e
i
m
a
r
u
m
b
a
u
t
e
r
r
a
u
m
:
7
9
2 m
³
f
l
ä
c
h
e
:
2
0
9 m
²
e r s a t z n e u b a u, u m b a u u n d s a n i e r u n g d e r f a c h w e r k h ä u s e r
b
a
u
h
e
r
r
:
t
h
o
m
a
s
d
.
j
a
h
r
:
1
9
9
8
-2
0
0
0
o
r
t
:
n
e
u
e
g
a
s
s
e / r
i
e
d 1 i
n
9
9
3
10
a
rn
s
t
a
d
t
u
m
b
a
u
t
e
r
r
a
u
m
:
5
3
8
6 m
³
f
l
ä
c
h
e
:
w
o
h
n
f
l
ä
c
h
e
: 7
5
2 m
² , g
e
w
e
r
b
e
f
l
ä
c
h
e
:
3
2
0 m
²
s a n i e r u n g g r ü n d e r z e i t v i l l a i n e i n w o h n - u n d b ü r o g e b ä u d e
b
a
u
h
e
r
r
:
t
h
o
m
a
s
d
.
j
a
h
r
:
1
9
9
9
-
2
0
0
0
o
r
t
:
a
l
f
r
e
d
-
h
e
s
s
-
s
t
r
.
2
9
i
n
e
r
f
u
r
t
e
i
n
h
e
i
t
e
n
:
5 wo
h
n
e
i
n
h
e
i
t
e
n
:
2
B
ü
r
o
s
f
l
ä
c
h
e
:
w
o
h
n
f
l
ä
c
h
e:
5
2
9 m
² , b
ü
r
o
f
l
ä
c
h
e:
3
5
1 m
²
m e d i c u s k r a n k e n - u n d a l t e n p f l e g e h e i m
b
a
u
h
e
r
r
:
m
a
t
h
i
a
s
s
.
j
a
h
r
:
1998
-1999
o
r
t
:
w
a
g
n
e
r
g
a
s
s
e 17 i
n a
r
n
s
t
a
d
t
e
i
n
h
e
i
t
e
n
:
7 w
o
h
n
e
i
n
h
e
i
t
e
n + 1 a
l
t
e
n
p
f
l
e
g
e
h
e
i
m
f
l
ä
c
h
e
:
n
u
t
z
f
l
ä
c
h
e
: 8
2
3 m²
u m b a u g e w e r b e h a l l e i n e i n f a m i l i e n h a u s
b
a
u
h
e
r
r
:
s
a
k
i
r
g
.
j
a
h
r
:
2
0
0
4 - 2
0
0
5
o
r
t
:
z
o
t
t
e
l
s
t
e
d
t
e
r
s
t
r
a
ß
e
1
0
i
n
9
9
5
10
n
i
e
d
e
r
r
o
ß
l
a
f
l
ä
c
h
e
:
w
o
h
n
f
l
ä
c
h
e
:
3
3
8 m
²
u
m
b
a
u
t
e
r
r
a
u
m
: 1
2
8
0 m
³
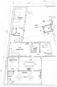
s t ä d t e b a u l i c h e s k o n z e p t z u r p l a t z n e u g e s t a l t u n g d e r e h e m. j o h a n n i s g a s s e d u r c h e i n e n
w o h n - u n d g e s c h ä f t s k o m p l e x
m
i
t
d
e
m
e
n
t
w
u
r
f
z
u
r
w
i
e
d
e
r
b
e
b
a
u
u
n
g
(
-
b
e
l
e
b
u
n
g
) d
e
s
e
h
e
m
a
l
i
g
e
n
b
a
u
k
o
m
p
l
e
x
e
s
w
e
r
d
e
n
n
e
u
e
i
m
p
u
l
s
e
z
u
r
e
n
t
w
i
c
k
l
u
n
g
a
l
s
e
i
n
k
a
u
f
s
-
u
n
d
w
o
h
n
s
t
a
n
d
o
r
t
g
e
g
e
b
e
n
.
d
a
b
e
i
s
o
l
l
d
a
s
i
n
d
e
r
s
t
a
d
t
v
o
r
h
a
n
d
e
n
e
a
n
g
e
b
o
t
i
n
d
e
n
b
e
r
e
i
c
h
e
n
h
a
n
d
e
l
,
d
i
e
n
s
t
l
e
i
s
t
u
n
g
e
n
u
n
d
w
o
h
n
e
n
e
r
g
ä
n
z
t
w
e
r
d
e
n
,
u
m
d
a
m
i
t
d
i
e
a
t
t
r
a
k
t
i
v
i
t
ä
t
u
n
d
le
b
e
n
d
i
g
k
e
i
t
d
e
s
s
t
a
d
t
z
e
n
t
r
u
m
s
v
o
n
a
r
n
s
t
a
d
t
z
u
e
r
h
ö
h
e
n
.
h
i
e
r
s
o
l
l
t
e
a
u
f
j
e
d
e
n
f
a
l
l
e
i
n
e
n
u
t
z
u
n
g
s
m
i
s
c
h
u
n
g
a
n
g
e
b
o
t
e
n
w
e
r
d
e
n
, d
i
e
z
u
e
i
n
e
r
q
u
a
l
i
t
a
t
i
v
e
n
a
u
f
w
e
r
t
u
n
g
d
e
s
g
e
s
a
m
t
s
t
a
d
t
z
e
n
t
r
u
m
s
f
ü
h
r
t
.
j
a
h
r
:
1
9
9
9
o
r
t
:
j
o
h
a
n
n
i
s
g
a
s
s
e i
n a
r
n
s
t
a
d
t
d
i
e
r
e
a
l
i
s
i
e
r
u
n
g
d
e
s
b
e
b
a
u
u
n
g
s
k
o
n
z
e
p
t
s
w
u
r
d
e
i
n
z
w
e
i
b
e
r
e
i
c
h
e
e
i
n
g
e
t
e
i
l
t
:
z
u
m
e
i
n
e
n
i
n
d
e
n
ö
s
t
l
i
c
h
e
n
T
e
i
l
,
d
e
n
h
e
u
t
i
g
e
n
p
a
r
k
p
l
a
t
z
,
u
n
d
z
u
m
a
n
d
e
r
e
n
i
n
d
e
n
b
e
s
t
e
h
e
n
d
e
n
g
e
b
ä
u
d
e
k
o
m
p
l
e
x
d
e
r
e
h
e
m
a
l
i
g
e
n
f
a
b
r
i
k
i
m
w
e
s
t
l
i
c
h
e
n
t
e
i
l
.
I
m
w
e
s
t
l
i
c
h
e
n
t
e
i
l
d
e
s
a
r
e
a
l
s
w
e
r
d
e
n
d
i
e
b
e
s
t
e
h
e
n
d
e
n
g
e
b
ä
u
d
e
s
a
n
i
e
r
t
b
z
w
.
e
r
w
e
i
t
e
r
t
u
n
d
i
n
e
i
n
e
e
i
n
k
a
u
f
s
p
a
s
s
a
g
e
u
m
g
e
b
a
u
t
,
w
o
b
e
i
a
u
f
d
e
r
f
r
e
i
e
n
f
l
ä
c
h
e
d
e
s
ö
s
t
l
i
c
h
e
n
t
e
i
l
s
e
i
n
g
e
b
ä
u
d
e
b
l
o
c
k
m
i
t
w
o
h
n
-
u
n
d
g
e
s
c
h
ä
f
t
s
h
ä
u
s
e
r
n
n
e
u
e
r
r
i
c
h
t
e
t
w
i
r
d
.
a r n s t a d t c e n t e r „ o b e r e w e i s s e “
j
a
h
r
:
1
9
9
9
o
r
t
:
o
b
e
r
e
w
e
i
s
s
e
i
n a
r
n
s
t
a
d
t
u m b a u u. n u t z u n g s ä n d e r u n g s p o r t h a l l e i n d r e i e i g e n t u m s w o h n u n g e n
j
a
h
r
:
2
0
0
4
o
r
t
:
d
o
r
f
s
t
r
a
ß
e
3
1
i
n
3
6
4
3
3
l
e
i
m
b
a
c
h
b
a
u
h
e
r
r
:
s
a
l
v
a
t
o
r
e
p
.
f
l
ä
c
h
e
:
w
o
h
n
- u
. n
u
t
z
f
l
ä
c
h
e
: 4
0
6 m
²
u
m
b
a
u
t
e
r
r
a
u
m
:
15
8
5 m
³
o
r
t
:
h
o
l
z
h
a
u
s
e
r
f
e
l
d
, t
h
ü
r
i
n
g
e
n
b e b a u u n g s p l a n e n t w u r f d e s w o h n g e b i e t e s h o l z h a u s e r f e l d
b e b a u u n g s p l a n e n t w u r f d e s w o h n g e b i e t e s z w e i b u c h e n f e l d
o
r
t
:
z
w
ei
b
u
c
h
e
n
f
e
l
d
, t
h
ü
r
i
n
g
e
n
s a n i e r u n g d e s m e h r f a m i l i e n h a u s e s
j
a
h
r
:
2
0
0
0
o
r
t
:
b
i
e
l
f
e
l
d
s
t
r
. 11 i
n
a
r
n
s
t
a
d
t
e
i
n
h
e
i
t
e
n
:
9
w
e
f
l
ä
c
h
e
:
w
o
h
n
f
l
ä
c
h
e
:
5
9
9 m
²
u
m
b
a
u
t
e
r
r
a
u
m
:
2
9
0
0 m
³
s a n i e r u n g w o h n h ä u s e r n i n a r n s t a d t
j
a
h
r
:
2
0
0
0
-2
0
0
1
o
r
t
:
g
ü
n
t
h
e
r
s
t
r
. 11,
13
u
n
d
15
i
n
a
r
n
s
t
a
d
t
e
i
n
h
e
i
t
e
n
:
3
h
ä
u
s
e
r
m
i
t
2
3
w
e
f
l
ä
c
h
e
:
f
l
ä
c
h
e
:
9
9
0 m
²